SYSTÈMES DE DÉCHARGEMENT ET DE DÉPALETTISATION DE PALETTES
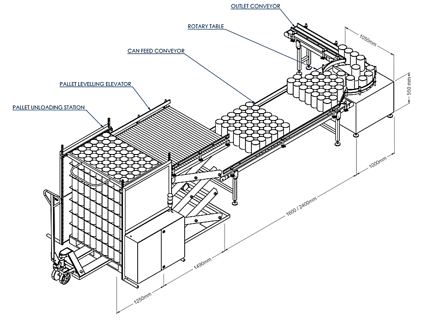
Le processus de remplissage commence par une zone de dépalettisation des conteneurs. Les conteneurs sont déchargés sur une table tampon et manipulés par des bandes transporteuses.
Le système d'alimentation d'emballage de Sapli est conçu pour dépalettiser les conteneurs
à partir de palettes et les alimenter ensuite vers la ligne de remplissage et d'emballage.
Le système se compose des éléments suivants :
1. Système de déchargement de palettes
2. Élévateur de nivellement de palettes
3. Convoyeur d'alimentation des conteneurs
4. Convoyeurs de sortie et de manutention des conteneurs orientés
Convient à tout type de taille de palette et spécialement conçu
pour gérer tout type d'emballage de hauteurs et de diamètres.
Fabriqué en acier inoxydable AISI-304









