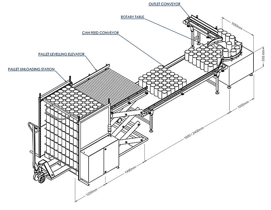
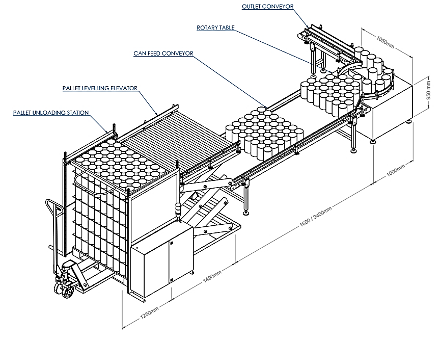
PALETTENENTLADUNGS- UND DEPALETTIERUNGSSYSTEME
Der Abfüllprozess beginnt mit einem Behälter-Depalettierungsbereich. Die Behälter werden auf einen Puffertisch entladen und über Transportbänder weiterbewegt.
Das Verpackungszuführungssystem von Sapli ist für die Depalettierung von Behältern konzipiert
von Paletten und führen Sie sie anschließend der Abfüll- und Verpackungslinie zu.
Das System besteht aus folgenden Teilen:
1. Palettenentladesystem
2. Palettennivellierungslift
3. Behälterzufuhrförderer
4. Ausgerichtete Behälterausgabe- und Handhabungsförderer
Passend für jede Palettengröße und speziell entwickelt
zur Handhabung jeglicher Verpackungshöhen und -durchmesser.
Hergestellt aus Edelstahl AISI 304









